The UK's Largest Customer Review Website for the Property Industry
The UK's Largest Customer Review Website for the Property Industry
Back to Property Listings
Houghton Lane, North Pickenham
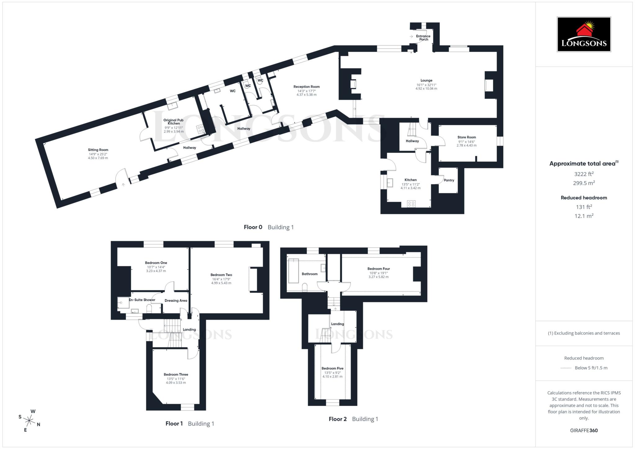
Situated in the popular village of North Pickenham, Longsons are delighted to bring to the market this substantial spacious five bedroom Grade II listed period property offering enormous potential. Formerly the village pub, this impressive property has character throughout with accommodation spread over three stories, the property and grounds would benefit from updating and offer a vast array of possibilities including potential annex (subject to planning), multi generational family accommodation etc....
Viewing highly recommended.
Briefly, the property offers entrance porch, lounge, kitchen with walk in pantry, inner hallway, walk through reception room, sitting room, ladies WC, gentleman`s WC, original pub kitchen, three double bedrooms on the first floor, en-suite shower room to bedroom one, two further bedrooms and luxury bathroom on the second floor, gardens, parking, gas central heating and some UPVC double glazing.
NORTH PICKENHAM
Located in the heart of Norfolk, North Pickenham is a charming village surrounded by picturesque farmlands and scenic landscapes. North Pickenham is also conveniently located near the market town of Swaffham, offering a range of amenities, shops, and entertainment. Good road connections, including the A47, provide easy access to nearby areas and beyond.
Entrance Porch
Entrance door to front, half stable style door opening through to lounge.
Lounge
Inglenook style feature fireplace, additional brickwork fireplace, two newly fitted wooden windows to front, radiator.
Kitchen
Fitted kitchen units to walls and floor, work surface over, stainless steel one and a half bowl sink unit with mixer tap and drainer, space for large Range style cooker, wall mounted gas central heating boiler, walk-in pantry, space for tall fridge/freezer, entrance door opening to rear garden, window to side.
Pantry
Storage Room - 14'6" (4.42m) x 9'1" (2.77m)
Reception Room - 17'7" (5.36m) x 14'3" (4.34m)
Double glazed window to front, two windows to rear.
Hallway
Entrance door and windows to rear, radiator.
Ladies WC
Two WCs, hand wash basin, obscure glass window to front.
Gentlemen`s WC
Three urinals, WC, hand wash basin, obscure glass window to front.
Original Pub Kitchen - 12'11" (3.94m) x 9'9" (2.97m)
Commercial kitchen fitments, wall mounted gas central heating boiler, two Stainless steel sink units, tiles to wall, window to front, tiles to floor.
Sitting Room - 25'2" (7.67m) x 14'9" (4.5m)
UPVC double glazed entrance door to rear, windows to front and rear, radiator.
Inner Hall
Stairs to First floor
Bedroom One - 14'4" (4.37m) x 10'7" (3.23m)
Walk-through dressing area, newly fitted wooden window to front, radiator.
En-Suite Shower Room
Shower cubicle, hand wash basin set within fitted cabinet, WC, towel radiator, obscure glass window to rear.
Bedroom Two - 17'9" (5.41m) x 16'4" (4.98m)
Large brickwork feature fireplace, newly fitted wooden window to front, radiator.
Bedroom Three - 13'5" (4.09m) x 11'6" (3.51m)
Window to rear, radiator.
Stairs and Second Floor Landing
Bedroom Four - 19'1" (5.82m) x 10'8" (3.25m)
Window to front, radiator.
Bedroom Five - 13'5" (4.09m) x 9'2" (2.79m)
Window to rear, radiator.
Bathroom
Double ended stand-alone bath with centrally located wall mounted water outlets and separate hand shower attachment, hand wash basin set within fitted cabinet, WC, towel radiator.
Outside
Parking area to side with vehicular access to Houghton Lane.
Rear Garden
Area laid to lawn currently with static caravan in situ which can be left or removed at the purchasers request, courtyard area laid to a combination of patio paving slabs and shingle with brick and flint built storage shed, three metal sheds, outside tap, outside lights, double doors opening to rear parking area.
Agent`s Note
EPC rating TBC (Full copy available on request)
Council tax band TBC (Own enquiries should be made via Breckland District Council)
what3words /// disco.perfectly.newlyweds
Notice
Please note we have not tested any apparatus, fixtures, fittings, or services. Interested parties must undertake their own investigation into the working order of these items. All measurements are approximate and photographs provided for guidance only.
Utilities
Electric: Mains Supply
Gas: Mains Supply
Water: Mains Supply
Sewerage: Mains Supply
Broadband: ADSL
Telephone: Landline
Other Items
Heating: Gas Central Heating
Garden/Outside Space: Yes
Parking: Yes
Garage: No

Agent Statistics (Based on 1 Reviews) :