The UK's Largest Customer Review Website for the Property Industry
The UK's Largest Customer Review Website for the Property Industry
Back to Property Listings
Melrose Crescent, Wishaw
A seriously impressive family home with standout entertaining space inside and out. From the showpiece open plan kitchen and dining area to the large garden backing onto open fields and the fantastic fully powered outhouse, this is a home designed for modern living, hosting and enjoying time with family and friends.
Five things our current owners love about their home:
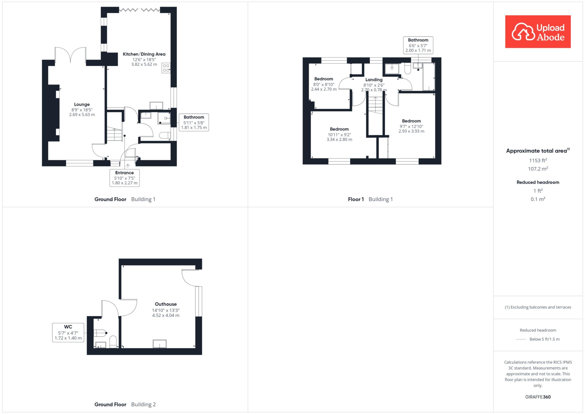
1) A spacious open-plan kitchen and dining area offering ample storage, excellent cooking facilities, and the perfect space for entertaining family and friends.
2) Two modern shower rooms, ideal for busy families and added convenience.
3) Ideally located close to a wide range of schools, local shops and supermarkets, the train station, with easy access to the M8 and M74 motorways perfect for commuters.
4) A large rear garden backing onto open fields, providing a peaceful and private setting to enjoy the summer months. Quiet and relaxing space with beautiful open outlooks.
5) Situated on a friendly street with fantastic neighbours a wonderful community atmosphere,
The lounge immediately feels warm and welcoming. A large front window fills the space with natural light while the feature media wall and sleek built in fireplace create a striking focal point. Generous proportions allow plenty of room for larger sofas and seating, making it an ideal space for relaxing in the evenings.
Moving through the home, the layout opens beautifully into the show stopping kitchen and dining area. This is clearly the social hub of the property. A large central island anchors the space while extensive cabinetry, integrated appliances and excellent worktop space provide everything needed for busy family life or entertaining guests. The dining area sits beside large windows and French doors that open directly to the garden, allowing natural light to pour into the room.
Upstairs the bedrooms are bright, spacious and easy to furnish. The principal bedroom enjoys a calm and stylish feel with fitted sliding wardrobes and plenty of floor space for additional furniture. The remaining bedrooms are well balanced and versatile, perfect for children, guests or working from home.
Two modern shower rooms serve the home, both finished with sleek tiling and contemporary fittings that create a clean, modern look while offering practical convenience for busy households.
Outside is where this home really sets itself apart. The large rear garden backs directly onto open fields, creating a peaceful setting and uninterrupted outlook. There is plenty of space for outdoor seating, play areas and summer gatherings while still being easy to maintain.
An impressive added feature is the detached outhouse. Fully powered and generously sized, it offers huge flexibility whether used as a home gym, office, games room or entertaining space.
Melrose Crescent sits within a popular residential pocket of Wishaw known for its friendly community atmosphere. Schools, shops and supermarkets are all close by, while excellent transport links including the nearby train station and quick access to the M8 and M74 make commuting straightforward.
Say YES to the address @uploadabode
what3words /// spider.toned.crowned
Notice
Please note we have not tested any apparatus, fixtures, fittings, or services. Interested parties must undertake their own investigation into the working order of these items. All measurements are approximate and photographs provided for guidance only.
Council Tax
North Lanarkshire Council, Band B
Utilities
Electric: Mains Supply
Gas: Mains Supply
Water: Mains Supply
Sewerage: Mains Supply
Broadband: Cable
Telephone: Landline
Other Items
Heating: Gas Central Heating
Garden/Outside Space: Yes
Parking: Yes
Garage: No

Agent Statistics (Based on 757 Reviews) :